Базилика Вознесения Девы Марии (Брно)
Базилика Вознесения Девы Марии (чеш. Bazilika Nanebevzetí Panny Marie) — моравский католический монастырский костёл при Старобрненском монастыре августинцев. Считается жемчужиной готической архитектуры Моравии. Расположен в городе Брно на северной стороне Менделевой площади (чеш. Mendlovo náměstí) недалеко от улицы Увоз[1][2]. 6 октября 1987 года папа Римский Иоанн Павел II наделил этот храм титулом малой базилики.
| Католический храм (костёл) | |
| Базилика Вознесения Девы Марии | |
|---|---|
| чеш. Bazilika Nanebevzetí Panny Marie | |
| |
| 49°11′30″ с. ш. 16°35′39″ в. д. | |
| Страна | |
| Местоположение | Старе Брно[d] |
| Конфессия | католичество |
| Епархия | Епархия Брно |
| Орденская принадлежность | Орден августинцев |
| Тип здания | Зальный храм |
| Архитектурный стиль | готика |
| Основатель | Эльжбета Рыкса |
| Дата основания | 1323 |
| Строительство | 1324 |
| Статус | Малая базилика |
| Состояние | Действующий |
| Сайт | opatstvibrno.cz/b… (чешск.) |
![]() |
|
История

Готический монастырский костёл Вознесения Девы Марии был заложен королевой Элишкой Рыксой в 1323 году в ареале основанного тогда же монастыря цистерцианок Aula Sanctae Mariae. Костёл построили рядом с тем местом, где с конца X или начала XI века стояла небольшая романская ротонда Девы Марии, которая в конце XII века была частично разрушена и заменена однонефным романским храмом с квадратной апсидой. В письменных источниках капелла Девы Марии в Старом Брно, с которой отождествляют эта ротонда, упоминается с начала XII века. Первое письменное упоминание о романском храме Девы Марии в Старом Брно датируется 1210 годом, когда пан Лев из Клобоук передал его премонстрантскому монастырю в Забрдовице. Готический костёл возник рядом с романским храмом между 1300 и 1323 годами[3][4][5].
Вдовствующая королева Чехии Элишка (Альжбета) Рыкса переехала в Брно после назначения её фаворита пана Йиндржиха из Липы на должность моравского земского гетмана в 1321 году. Кающаяся королева в 1323 году основала при старом приходском храме Девы Марии в Старом Брно «для удовлетворения совести и отпущения грехов» монастырь цистерцианок и начала строительство нового монастырского костёла в готическом стиле. Покровительство Девы Марии и статус приходского храма были перенесены на новый готический костёл, а старый романский храм в 1389 году был заново освящён в честь Святой Анны. В 1325 году Йиндржих из Липы избрал новый костёл в качестве места своего погребения, что и было сделано после его смерти четыре года спустя. В 1333 году королева основала при старом романском храме госпиталь. После смерти королевы Элишки Рыксы в 1335 году её тело также было погребено в этом костёле, согласно монастырской хронике, у алтаря Святого Креста. Место её упокоения отмечено плиткой с литерой «E» и короной[6][7][5][3].
Старобрненский монастырь и монастырский костёл были повреждены и опустошены во время гуситских в 1429 году и чешско-венгерских войн в 1467 году. В последнем случае костёл был разграблен войсками князя Викторина из Подебрад. После проведённого восстановления костёл Вознесения Девы Марии был заново освящён в 1483 году вместе со старым храмом Святой Анны и капеллой Святого Прокопа. Значительный ущерб зданию костёла, как и другим монастырским строениям, был нанесён в 1645 году при осаде Брно шведскими войсками. Во время последующего ремонта готического костёла функции монастырского храма выполнял старый романский храм Святой Анны[5][8].
.jpg.webp)
В XVIII веке костёл был перестроен в архитектурном стиле барокко под руководством немецкого архитектора Морица Гримма (ум. 1757), однако перестройка коснулась, главным образом, внутреннего устройства (в основном, главного алтаря и кафедры епископа), оставив храму его неповторимый готический внешний облик[9].
18 марта 1782 года в ходе реформы императора Иосифа II монастырь цисцерцианок в Старом Брно был закрыт. В 1783 году монастырский комплекс вместе с костёлом Вознесения Девы Марии был передан августинскому конвенту Святого Томаша. В конце XIX века была проведена общая реконструкция храма[5][7][1].
Во время Второй мировой войны костёл пострадал от бомбардировок, прежде всего, пострадали окна и витражи, восстановленные в 1975 году. В 1950 году монастырский комплекс был национализирован. Ордену августинцев Старобрненский монастырь и храм Вознесения Девы Марии были возвращены государством в 1990 году[8][5]
В 1987 году в ходе визита в Брно Папа Римский Иоанн Павел II посетил костёл Вознесения Девы Марии. 6 октября 1987 года папа присвоил храму почётный титул малой базилики[10][2]. Последний масштабный ремонт интерьера базилики был осуществлён в 2000 году.
Описание
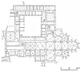
Базилика построена в стиле так называемой силезской готики. Храм отличается сложной и редкой для Моравии горизонтальной композицией из двух перпендикулярных нефов в форме креста, а также необычной строительной техникой, использующей тёсаный камень вместе с неоштукатуренной кирпичной кладкой. Здание с такими архитектурными особенностями очевидно было создано под влиянием готических строений Кёльна, Гессена и Силезии того времени. В этом же стиле королева Элишка Рыкса ранее распорядилась воздвигнуть Собор Святого Духа в городе Градец-Кралове, в котором королева жила до того[9][7][2].
Главными украшениями интерьера базилики Вознесения Девы Марии являются знаменитый серебряный алтарь с иконой Девы Марии Святотомской («Старобрненская Мадонна»), перенесённый августинцами из своего предыдущего храма Благовещения Девы Марии и Святого апостола Фомы после переселения в Старобрненский монастырь в 1783 году, и монументальный образ главного алтаря со сценой Вознесения Девы Марии работы Йосефа Тадеаша Роттера. Главный алтарь завершён скульптурной группой Святой Троицы[11][12][13].
В начале 60-х годов XVIII века в пространствах главного нефа и трансепта были устроены боковые алтари, образы которых были написаны в основном Йосефом Тадеашем Роттером, а рельефные лепные украшения созданы неизвестным автором. Первая пара боковых алтарей: алтарь Девы Марии — Матери Доброго Совета с образом Четырнадцати святых помощников (слева) и алтарь Девы Марии Отрадной с образом Всех святых (справа). Вторая пара боковых алтарей: алтарь Непорочного зачатия с образом Святого Бенедикта (слева) и алтарь Божественного Сердца Господнего с образом Святого Бернара Клервоского (справа). Третья пара алтарей: алтарь Святого Иосифа с образом Святого семейства и образом Марты и Марии (справа) и алтарь Святого Алоизия с образами Святого Альбериха, Святых апостолов Петра и Павла и Святых Прокопа и Яна Непомуцкого (слева)[13].
Кафедра базилики, украшенная гипсовым рельефом, была создана Ондржеем Швеглой. Основным мотивом убранства кафедры является сюжет «Моисей получает Десять заповедей». Барочная Капелла Гроба Господня, расположенная в пространстве большого трансепта, была построена в последние годы цисцерцианского владения храмом Францем Антоном Гриммом, сыном Морица Гримма. Тимпан над главным входом в базилику содержит рельеф с сюжетом коронации Девы Марии Иисусом Христом[13].
![]() | ![]() | ![]() | ![]() | |||
| Главный вход в базилику | Главный алтарь базилики | Своды базилики | Колокольня базилики |
Археологические исследования
Весной—летом 1966 года в храме были проведены обширные археологические исследования, целью которых было спасение храма от разрушения. Первоначально в задней части главного нефа было обнаружено шесть захоронений, в двух из которых были найдены остатки подушек в заглавии. На одном из скелетов были обнаружены остатки розария с деревянным крестом в металлической оправе. Дальнейшие исследования показали, что захоронения в задней части главного нефа относятся к XVIII веку, а общее их количество составляет около 100. при вскрытии деревянного поля ризницы было найдено два каменных надгробия, под которыми находилось останки человеческих скелетов и мужской череп. И наконец в передней части правого нефа была обнаружена и вскрыта ещё одна могила, сооружённая из средневекового кирпича. В гробу находились останки скелета взрослого мужчины. Согласно монастырским записям, в этом месте в 1329 году был похоронен моравский земский гетман пан Йиндржих из Липы[7].
В 1976—1984 годах археологические исследования в ареале костёла Вознесения Девы Марии и Старобрненского монастыря проводились специалистами музея города Брно. В результате раскопок были исследованы три стадии существования базилики: следы ротонды конца X — начала XI века, остатки романского однонефного храма с квадратной апсидой и двумя боковыми капеллами и первоначального готического костёла XIV века. Следы ранней романской ротонды были обнаружены в 1978 году в кладке пресвитерия и восточной части нефа первоначального романского храма. Эта ротонда является старейшим зданием на территории Брно. От неё почти полностью сохранилась кладка апсиды слегка подковообразной формы и остатки кладки северного и западного цилиндрического нефа. В непосредственной близости было исследовано кладбище, относившееся в своё время ко всем трём историческим храмам[3][4][5].
См. также
Примечания
- Bazilika Nanebevzetí Panny Marie.
- Bazilika Nanebevzetí Panny Marie na Starém Brně.
- Kostel Panny Marie (Sv. Anny).
- Hana Zapletalová, 1999, Úvod.
- Starobrněnský klášter.
- Hana Zapletalová, 1999, Zakladatelka chrámu Nanebevzetí Panny Marie - královská vdova ELIŠKA REJČKA.
- Encyklopedie dějin města Brna.
- Bazilika Nanebevzetí Panny Marie (průvodce).
- Bílek J., Tučka O., 2006, с. 68.
- Bazilika Nanebevzetí Panny Marie. gcatholic.org. Архивировано 18 марта 2016 года.
- Hana Zapletalová, 1999, Stříbrný oltář.
- Hana Zapletalová, 1999, Starobrněnská Madona - PANNA MARIA SVATOTOMSKÁ - Palladium města Brna.
- Hana Zapletalová, 1999, Ostatní výtvarná díla.
Литература
- Bílek J., Tučka O. Brněnské kostely. — Kartuziánské nakladatelství. — Brno, 2006. — 249 S. — ISBN 80-86953-06-8.
- Bohumil Samek 1 // Umělecké památky Moravy a Slezska (чешск.). — Praha: Academia, 1994. — 651 p. — ISBN 80-200-0474-2.
Ссылки
- Bazilika Nanebevzetí Panny Marie na Starém Brně. MojeBrno. Архивировано 18 марта 2016 года.
- Bazilika Nanebevzetí Panny Marie. Turistické Informační Centrum Města Brna. Архивировано 18 марта 2016 года.
- Bazilika Nanebevzetí Panny Marie. Neoficiální prezentace města Brna. Архивировано 18 марта 2016 года.
- Bazilika Nanebevzetí Panny Marie. Encyklopedie dějin města Brna. Архивировано 18 марта 2016 года.
- Kostel Panny Marie (Sv. Anny). Encyklopedie dějin města Brna. Архивировано 18 марта 2016 года.
- Starobrněnský klášter. Encyklopedie dějin města Brna. Архивировано 18 марта 2016 года.
- Zapletalová, Hana. Z historie starobrněnské baziliky Nanebevzetí Panny Marie na Mendlově náměstí. Augustiniánské opatství na Starém Brně (1999). Архивировано 18 марта 2016 года.





%252C_v%C4%9B%C5%BE.JPG.webp)
.jpg.webp)