Вводно-распределительное устройство
Вводно-распределительное устройство (ВРУ) — совокупность электротехнических конструкций и аппаратов, предназначенных для приёма, распределения, устанавливаемая в жилых и общественных зданиях, а также промышленных производственных помещениях (цехах).
7.1.3. Вводное устройство (ВУ) — совокупность конструкций, аппаратов и приборов, устанавливаемых на вводе питающей линии в здание или в его обособленную часть.
Вводное устройство, включающее в себя также аппараты и приборы отходящих линий, называется вводно-распределительным (ВРУ).
— Правила устройства электроустановок (ПУЭ). Глава 7.1. Электроустановки жилых, общественных, административных и бытовых зданий
Кабели от трансформаторных подстанций резервных источников питания до вводно-распределительных устройств должны прокладываться в раздельных огнестойких каналах или иметь огнезащиту[1].
Для питания электроприёмников систем противопожарной защиты необходимо самостоятельные вводно-распределительны устройства, расположенные в каждом пожарном отсеке[2].
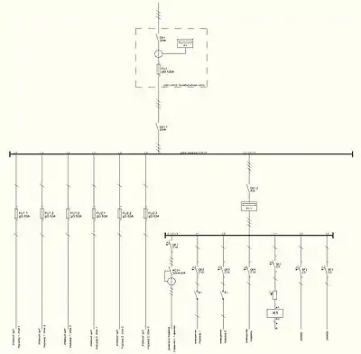
ВРУ жилого (общественного) здания

ВРУ жилого и/или общественного здания предназначено для использования в сети напряжением 230/400 В трёхфазного переменного тока частотой 50 Гц в сетях с глухозаземлённой нейтралью, для защиты линий при перегрузках и коротких замыканиях, а также для нечастых (до 6 включений в час) оперативных включений и отключений электрических сетей и обычно представляет собой заземлённый металлический шкаф защищённого исполнения, внутри которого может находиться соответствующая аппаратура: рубильники, предохранители, счётчики электрической энергии, панели аварийного ввода резерва, реле контроля фаз, выключатель аварийного освещения, датчики распределения нагрузки по фазам, вольтметры и амперметры. На дверь ВРУ может выводиться индикация основных параметров электросети: напряжения, тока, срабатывания защит, асимметрии по фазам, и пр. Амперметры и счётчики энергии включаются через трансформаторы тока.
Ввод кабелей и проводов предусмотрен снизу шкафа, вывод — снизу или через верхнюю съёмную крышку. Максимальное количество и сечение жил проводов и кабелей, подсоединяемых к одному вводному зажиму ВРУ, установленному в общественных зданиях и/или домах повышенной этажности — 4×150 мм2.
В СССР ВРУ часто комплектовались из типовых вводных панелей ВРУ-В1 — ВРУ-В3 и распределительных панелей типа ВРУ-12 — ВРУ-24. Панели шкафного типа поставлялись с установленной аппаратурой, со всеми внутренними электрическими соединениями и проводами межпанельных соединений. Габаритные размеры всех панелей: 1 700×800×500 мм.
Доступность помещения
1.7.72. В электропомещениях электроустановок напряжением до 1 кВ не требуется защита от прямого прикосновения при одновременном выполнении следующих условий:
- эти помещения отчётливо обозначены, и доступ в них возможен только с помощью ключа;
- обеспечена возможность свободного выхода из помещения без ключа, даже если оно заперто на ключ снаружи;
- минимальные размеры проходов обслуживания соответствуют гл. 4.1
— Правила устройства электроустановок (ПУЭ)
Примечания
- Технический регламент о требованиях пожарной безопасности Статья 82
- СП 6.13130.2009 Системы противопожарной защиты. Электрооборудование. Требования пожарной безопасности. П. 4.7
См. также
Внешние ссылки
- Общие требования к распределительным устройствам и низковольтным комплектным устройствам напряжением до 1 кВ переменного тока и до 1.5 кВ постоянного тока, стационарным распределительным устройствам и трансформаторным подстанциям переменного тока напряжением выше 1 кВ указаны в главах 4.1 и 4.2 Правил устройства электроустановок (ПУЭ). Ознакомиться можно, например здесь.
- Вводно-распределительное устройство (ВРУ): состав, классификация, требования / Юрий Макаров // ASUTPP : сайт. — 12.12.2020.